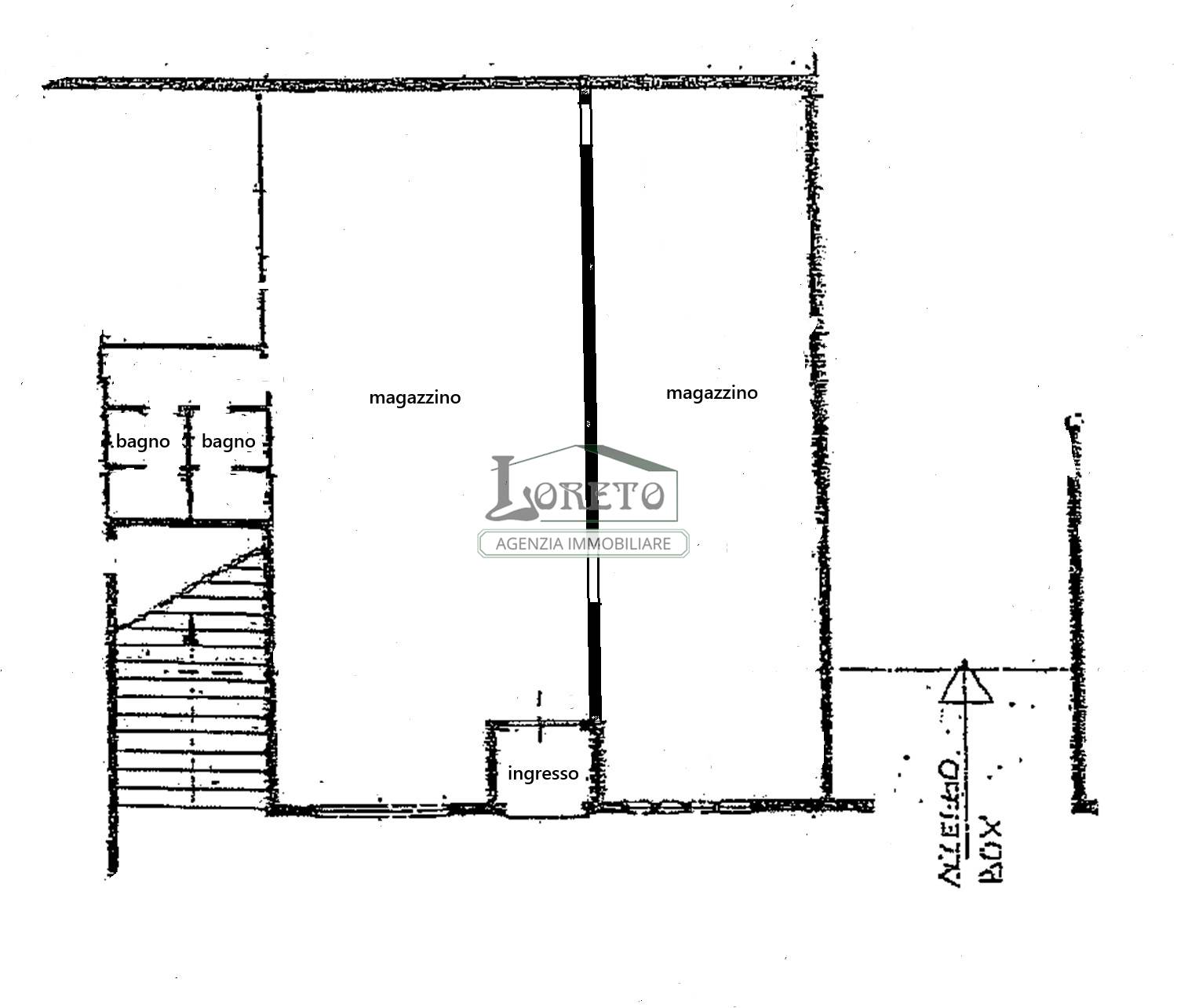
1 Boxes/Car places 200 m2
Primal Features
Code
v 439
Price
195.000 EUR
Energetic Class
VA
Locals
1
Other features and accessories
Property Conditions
To Be Renovated
Cookie preference